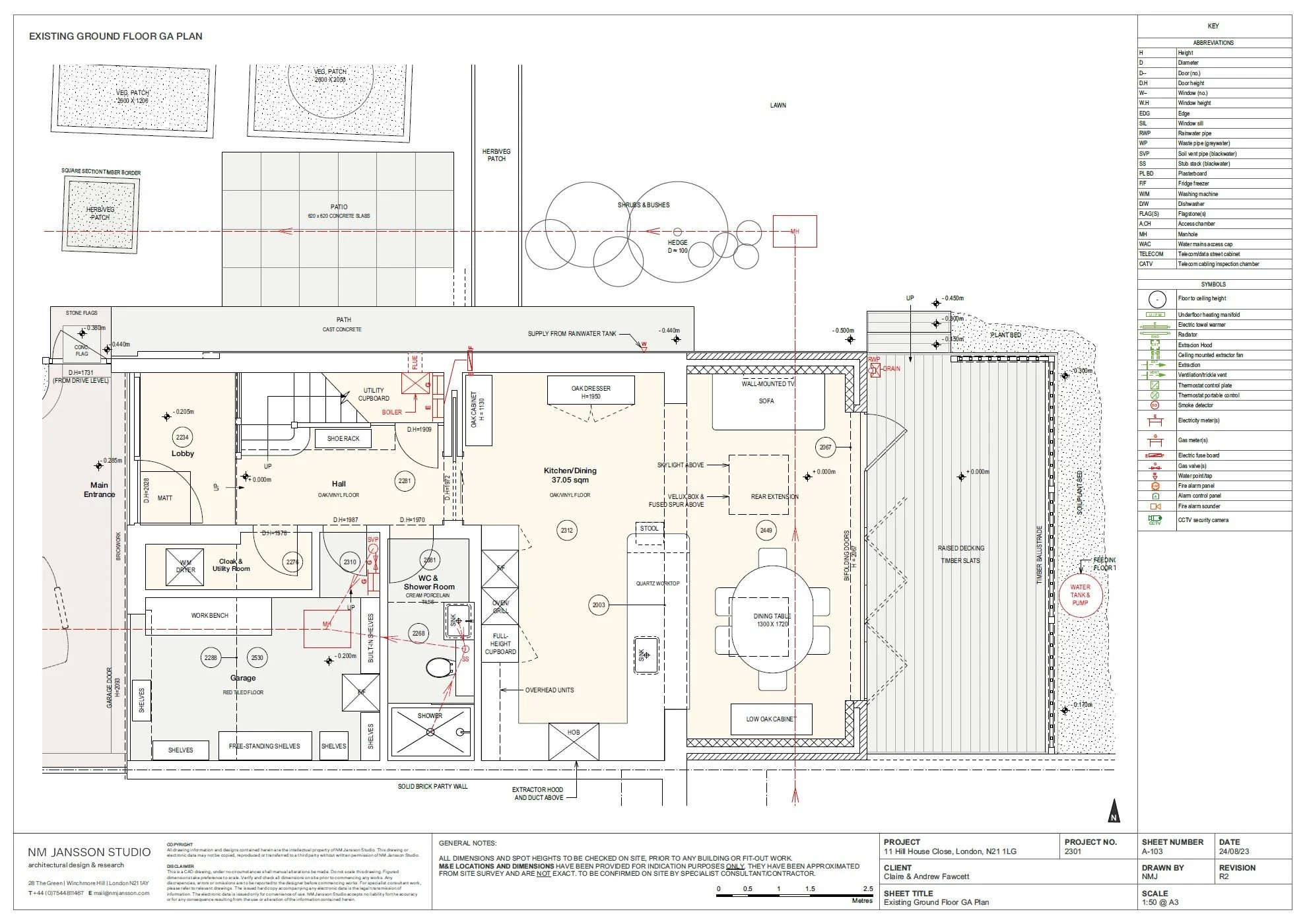
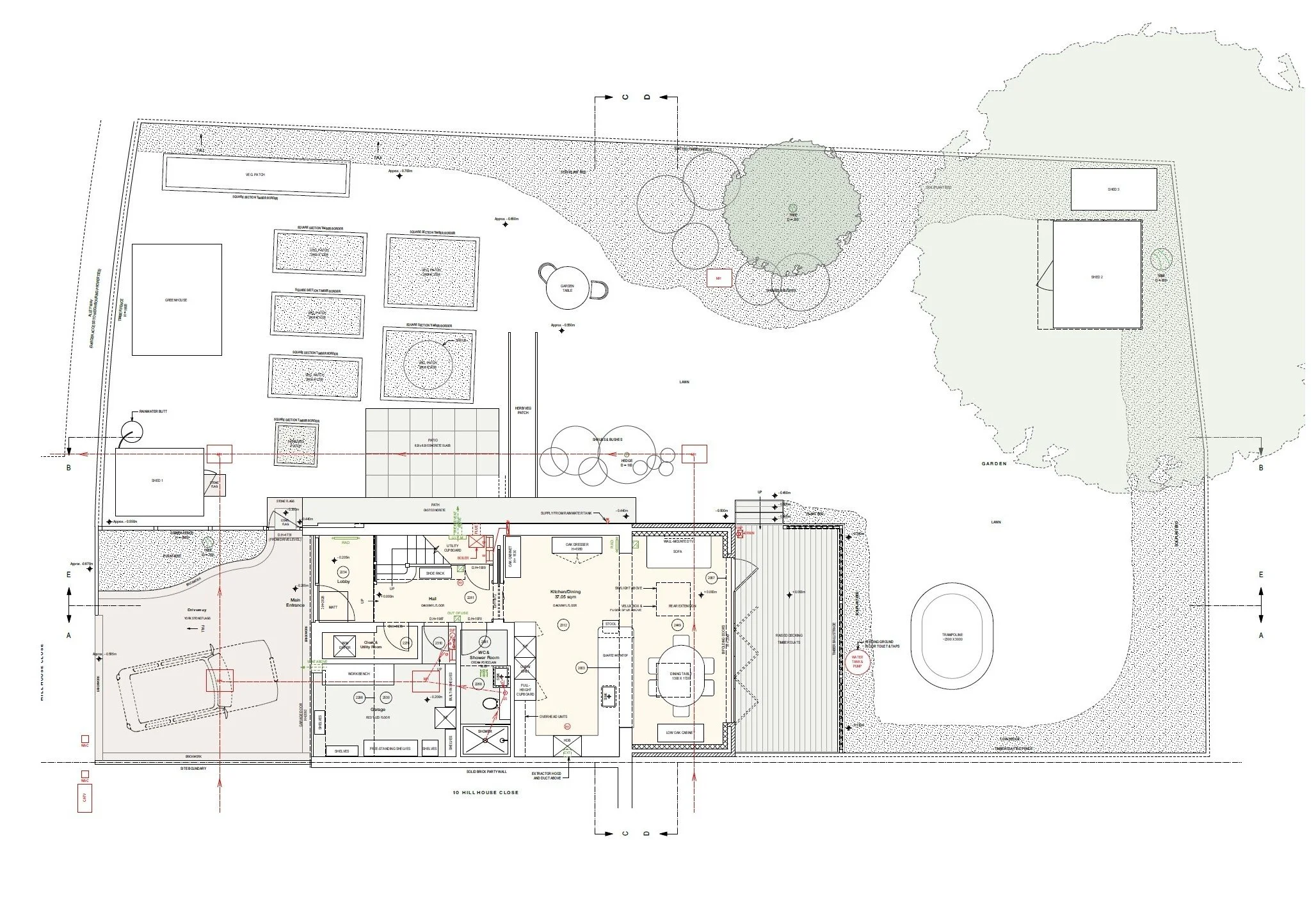
Hill House Close

For this 1960s end of terrace family home, we developed an extension and refurbishment strategy to enhance comfort, flow, and long-term usability. Working closely with the client, the proposal was shaped by their daily routines, needs, and budgeting priorities, with the aim of enabling the family to remain in the property during construction.

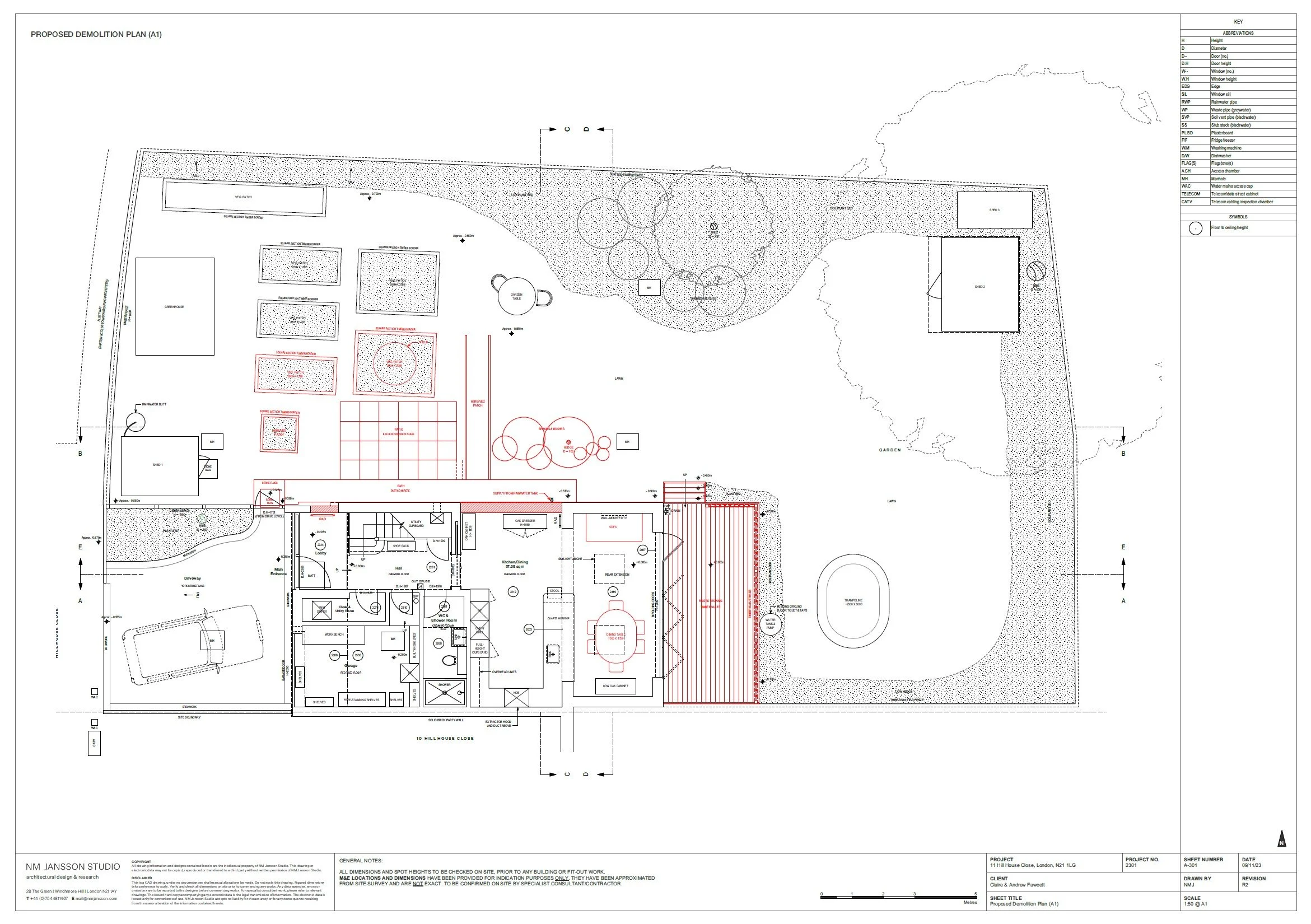
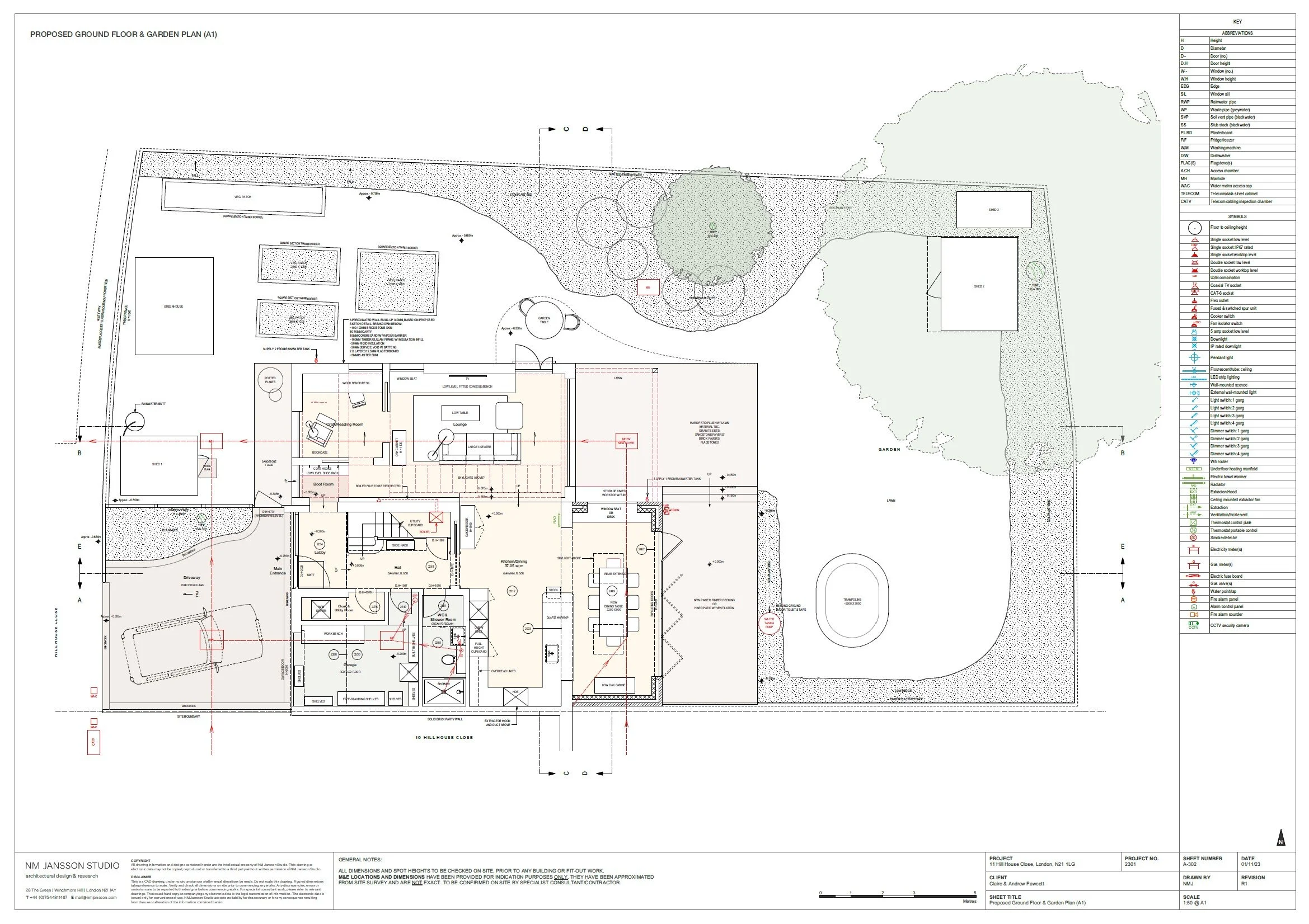
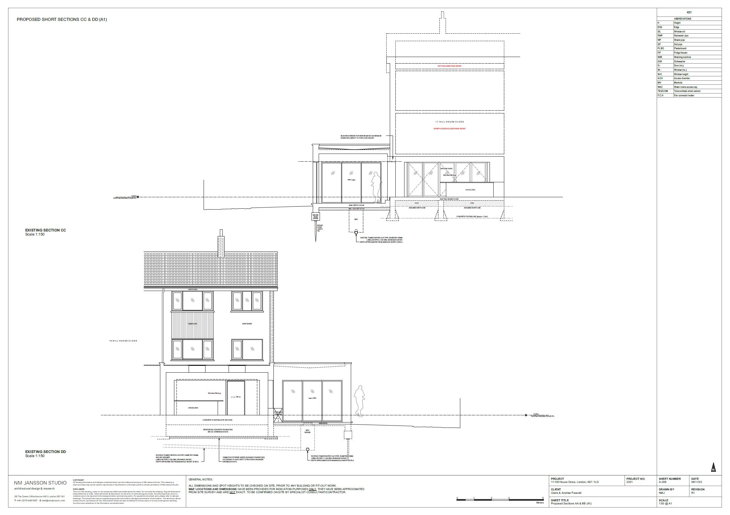
The design centred on a 45 sqm side extension incorporating an enlarged living space level with a new outdoor patio, a study, and a utility room connected to an outdoor working area. The garden was relandscaped to optimise orientation and aspect, accommodating the homeowner’s gardening interests and strengthening visual connections between the interior spaces and the garden. We worked through several layout options, alongside material and aesthetic considerations, to ensure the scheme supported present and future needs and provided seasonal flexibility.

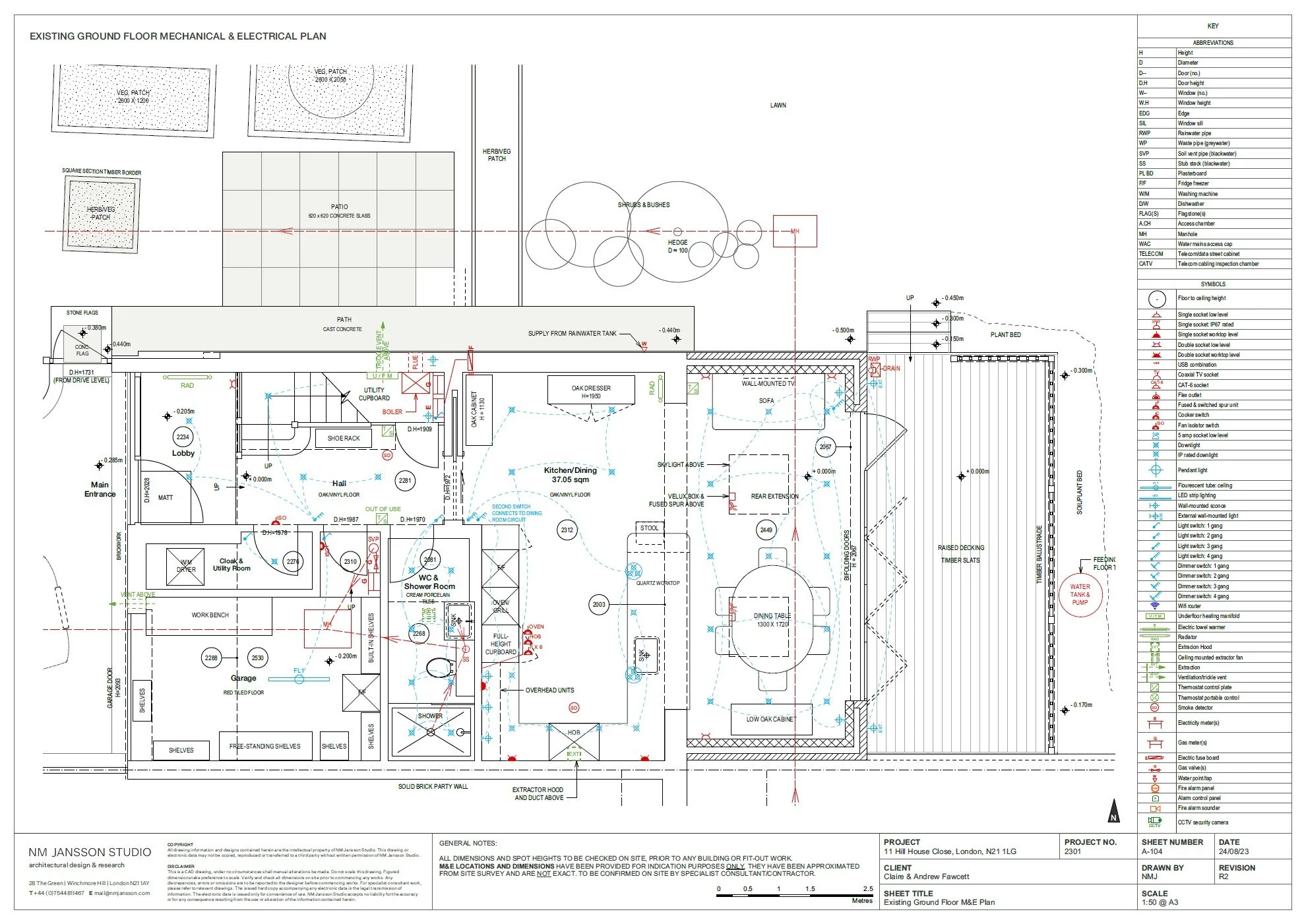
A range of suitable construction approaches was evaluated side by side, prioritising light touch structural strategies, flexible build phasing, budget efficiency, and reduced embodied carbon. These included timber frame, CLT, stone, brick, and hybrid strategies. The work also involved a full measured survey of the property and its mechanical and electrical services, together with a technical appraisal of the building fabric supported by early structural engineer engagement, valuation studies, and cost exercises. Drainage investigations and Build Over Agreement discussions informed the foundation detailing and contributed to the strategic groundwork for the scheme.

A tailored, process-oriented and responsive design approach supported informed and low-risk decision-making throughout, offering clarity and reassurance as the project evolved.

Location
Enfield, London

Project Type
Residential

Date
2023–24

Client
Private

Services
Architectural Design